Zgoda Park
Nowe mieszkania
na sprzedaż Brwinów
18 funkcjonalnych kawalerek
13 komfortowych mieszkań dwupokojowych
7 przestronnych mieszkań trzypokojowych
3 rodzinne mieszkania czteropokojowe
w parterze lokal usługowy
garaż podziemny na 36 stanowisk postojowych

Witamy
w wyjątkowym
miejscu
Lokale mieszkalne w Brwinowie
Odkryj nowoczesne przestrzenie mieszkalne, które łączą w sobie elegancki design z funkcjonalnością. Nasze mieszkania zostały zaprojektowane z myślą o Twoim komforcie i wygodzie życia codziennego.
Znajdź swoje
mieszkanie
Wybierz kondygnację lub piętro
Lokale:
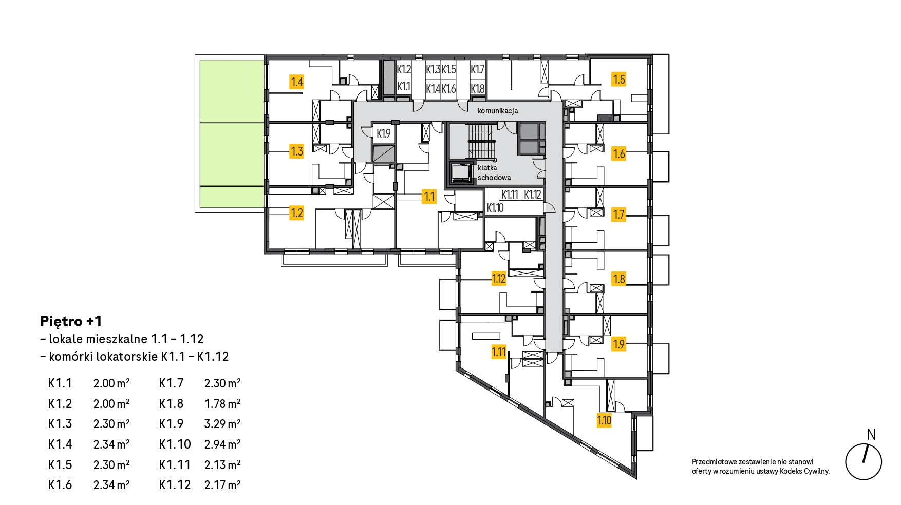
Piętro 1 – wybierz mieszkanie
Lokale:
Parter – wybierz mieszkanie
Lokale:
Piętro 2 – wybierz mieszkanie
Lokale:
Piętro 3 – wybierz mieszkanie
Lokale:
Piętro -1 – wybierz miejsce postojowe
Lokale:
Ładowanie mieszkań…
Kameralne, niewielkie
mieszkania w samym
sercu Brwinowa



Eksperci Finansowi
NOTUS
Bezpłatne wsparcie, które się opłaca
Planujesz zakup mieszkania? Rekomendowani Eksperci Finansowi NOTUS pomogą Ci przejść przez cały proces uzyskania kredytu – bez stresu, bez prowizji, z pełnym wsparciem na każdym etapie.
Czy zapłacisz więcej niż w banku?
Nie. Nasze usługi są w 100% bezpłatne – wynagrodzenie wypłacają nam banki. A co najważniejsze: kredyt z pomocą eksperta może być tańszy, bo pomożemy Ci wybrać najkorzystniejszą ofertę.
Ekspert do, Twojej dyspozycji

Agnieszka Skalska-Bazelak
Ekspert finansowy
Dlaczego warto?

Doskonała
lokalizacja
Doskonała lokalizacja
Zgoda Park to jeden
z największych atutów
tej inwestycji.
Położenie w samym sercu Brwinowa zapewnia wyjątkową wygodę na co dzień. Zaledwie 5 minut spacerem dzieli mieszkańców od stacji PKP, skąd w kilkadziesiąt minut można dostać się do centrum Warszawy.
W pobliżu znajdują się również sklepy spożywcze, szkoły, przedszkola, apteki, restauracje, kawiarnie oraz rozległe tereny zielone i park miejski, idealny do spacerów i rodzinnego wypoczynku. Dzięki takiemu otoczeniu Zgoda Park to miejsce, które łączy komfort życia blisko centrum z ciszą i spokojem typowym dla mniejszych miejscowości.
Historia
i nowoczesność



Tworzymy wymarzone
Miejsca do życia

Jesteśmy przekonani, że nasze projekty nie tylko spełniają marzenia o własnym domu, ale także przyczyniają się do rozwoju lokalnych społeczności.
Spółki deweloperskie wchodzące w skład rodziny Asua z pasją i zaangażowaniem kształtują przyszłość polskiego rynku nieruchomości, budując lokale mieszkalne, które nie tylko są estetyczne i funkcjonalne, ale także przystępne cenowo. Naszym priorytetem jest zapewnienie, aby marzenie o własnym domu było osiągalne dla każdego. Gotowe Mieszkanie to zespół profesjonalistów, architektów wnętrz i koordynatorów prac wykończeniowych, których łączy jedno – miłość do pięknych wnętrz.
Projekty, materiały, ekipa specjalistów Kompleksowe wykańczanie mieszkań pod klucz Realizacja zabudowy meblowej i kuchennej 4 pakiety dostosowane do potrzeb klienta Ponad 1700 zrealizowanych projektów
Zrealizuj wymarzony
projekt swojego M!

Skorzystaj z oferty naszego Partnera, firmy Gotowe Mieszkanie i stwórz wnętrze swoich marzeń. Firma Gotowe Mieszkanie to zespół, który łączy jedno – miłość do pięknych wnętrz. Działają na rynku od 2016 roku i mają na swoim koncie blisko 1 700 wykończonych mieszkań i domów.
W swoich realizacjach stawiają na równowagę, funkcjonalność i estetykę. Są zwolennikami holistycznego podejścia do kwestii wykończenia, dlatego zgromadzili zespół profesjonalistów, którzy dbają o całokształt realizacji. Oferują projekt szyty na miarę, materiały, sprawdzoną ekipę wykończeniową oraz gwarancję wykonania usługi.
Napisz na adres: warszawa@gotowemieszkanie.pl
lub zadzwoń pod numer +48 531 752 752
Specjalne korzyści dla
klientów
Zgoda Park

2% rabatu na wykończenie wnętrza

5% rabatu na zabudowy meblowe

Oszczędność 15% podatku VAT

Krótki termin realizacji

Praca z architektem

8 lat doświadczenia




Co oferuje
Zgoda Park?

Mieszkania
Atrakcyjne mieszkania o
powierzchni od 37 do 85 m²

Przestrzeń zewnętrzna
Balkony, Loggie, tarasy, ogródki

Udogodnienia
Komórki lokatorskie i miejsca postojowe w garażu

Lokale usługowe
Codzienne udogodnienia na wyciągnięcie ręki
Dlaczego warto zamieszkać
w Zgoda Park?

Mieszkania
Atrakcyjne mieszkania o
powierzchni od 37 do 85 m²
Nowoczesne mieszkania o powierzchni od 37 do 85 m² to idealna propozycja dla osób ceniących funkcjonalność i wygodę. Przemyślane układy pomieszczeń zapewniają optymalne wykorzystanie przestrzeni, a wysoka jakość wykończenia gwarantuje komfort codziennego życia.

Idealne
dla aktywnych
Loggie lub balkony w każdym
mieszkaniu
Każde mieszkanie posiada ogródek lub balkon – prywatną przestrzeń na świeżym powietrzu, idealną na poranną kawę czy relaks po pracy. To doskonałe rozwiązanie dla osób aktywnych, które cenią bliskość natury bez rezygnacji z miejskich udogodnień.



Komunikacja
Komórki lokatorskie i miejsca
postojowe w garażu
Dla wygody mieszkańców przewidziano komórki lokatorskie oraz miejsca postojowe w garażu podziemnym. Dzięki temu zyskujesz dodatkową przestrzeń do przechowywania oraz bezpieczeństwo i komfort codziennego parkowania, niezależnie od pogody.

Oszczędne
Energooszczędne
rozwiązania
Zastosowanie energooszczędnych rozwiązań pozwala nie tylko zadbać o środowisko, ale także realnie obniżyć koszty eksploatacji mieszkań. Nowoczesna technologia idzie tu w parze z troską o Twój domowy budżet i przyszłość planety.
Dział sprzedaży
Zapraszamy do kontaktu
z naszym ekspertem
Anna Dymecka
Sprzedaż nieruchomości
Przestronne mieszkania
na sprzedaż Brwinów
Nasza oferta mieszkaniowa została starannie zaprojektowana, aby spełnić różnorodne potrzeby naszych klientów. Każde mieszkanie charakteryzuje się przemyślanym układem i wysokim standardem wykończenia.
Wyjątkowa lokalizacja w sercu Brwinowa zapewnia dostęp do wszystkich niezbędnych udogodnień, jednocześnie gwarantując spokój i prywatność.

ASUA Inwestycje spółka z ograniczoną odpowiedzialnością
KRS: 0001103885
NIP: 5291854441
REGON: 528575430
Biuro sprzedaży
05-827 Grodzisk Mazowiecki,
ul. Królewska nr 36 lok. 11
Anna Dymecka
Kontakt: 790 400 402
sprzedaz@asua.pl
Social Media
Dokumenty
© 2025 ASUA. Wszelkie prawa zastrzeżone.



